中古戸建 熊谷市拾六間789-5(リフォーム住宅)

2,199万円

埼玉県熊谷市拾六間789-5

高崎線「籠原」駅徒歩34分

埼玉県熊谷市「寿公園」バス停

価格
2,199万円
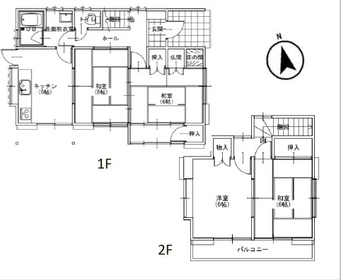
間取り/建物面積
4DK/76.17㎡
所在地
埼玉県熊谷市拾六間789-5
築年
1987年5月(築38年)
駐車
有(2台)
交通

高崎線籠原」駅 徒歩34分

埼玉県熊谷市「寿公園」バス停下車 徒歩4分

中古戸建 熊谷市拾六間789-5(リフォーム住宅)の基本情報

物件名
中古戸建 熊谷市拾六間789-5(リフォーム住宅)
価格
2,199万円
建物面積
76.17㎡
土地面積
50.11坪(165.66㎡)
築年月
1987年5月(築38年)
総戸数
1戸
所在地
埼玉県熊谷市拾六間789-5
交通

高崎線籠原」駅 徒歩34分

埼玉県熊谷市「寿公園」バス停下車 徒歩4分

中古戸建 熊谷市拾六間789-5(リフォーム住宅)の詳細情報

設備条件
  • 駐車2台可
設備(その他)
    -
駐車場/月額
有(2台)/-
土地権利
所有権
国土法届出
不要
用途地域
第一種低層住居専用
取引態様
仲介
引渡し
相談

中古戸建 熊谷市拾六間789-5(リフォーム住宅)で募集中の物件

  1. 23.04坪 (76.17㎡)

    2,199万円(95.44万円/坪)

周辺施設

  • 熊谷市立籠原小学校の画像

    小学校

    熊谷市立籠原小学校

    1277m(16分)

  • 熊谷市立三尻中学校の画像

    中学校

    熊谷市立三尻中学校

    2113m(27分)

近隣の物件

  1. 熊谷市石原2丁目

    4LDK (108.47㎡)

    2,690万円

  2. 熊谷市伊勢町

    4LDK (119.24㎡)

    3,590万円

  3. 熊谷市柿沼

    3DK (73.69㎡)

    1,599万円

  4. 熊谷市上之

    4LDK (105.99㎡)

    2,790万円

中古戸建 熊谷市拾六間789-5(リフォーム住宅)

お気軽にお問い合わせください

無料お問い合わせ

FFP不動産コンサルティング株式会社

0493-24-3425

9:00~18:00

(休:水曜日)