中古戸建 東松山市桜山台23-17(期間限定現況販売)

1,299万円

埼玉県東松山市桜山台23-17

東武東上線「高坂」駅徒歩29分

川越観光自動車「桜山台」バス停

価格
1,299万円
間取り/建物面積
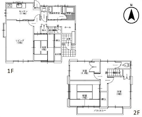
4LDK/103.50㎡
所在地
埼玉県東松山市桜山台23-17
築年
1985年3月(築41年)
駐車
有(2台)
交通

東武東上線高坂」駅 徒歩29分

川越観光自動車「桜山台」バス停下車 徒歩2分

中古戸建 東松山市桜山台23-17(期間限定現況販売)の基本情報

物件名
中古戸建 東松山市桜山台23-17(期間限定現況販売)
価格
1,299万円
建物面積
103.50㎡
土地面積
71.32坪(235.80㎡)
築年月
1985年3月(築41年)
総戸数
1戸
所在地
埼玉県東松山市桜山台23-17
交通

東武東上線高坂」駅 徒歩29分

川越観光自動車「桜山台」バス停下車 徒歩2分

中古戸建 東松山市桜山台23-17(期間限定現況販売)の詳細情報

設備条件
  • 駐車2台可
設備(その他)
    -
駐車場/月額
有(2台)/-
土地権利
所有権
国土法届出
不要
用途地域
第一種中高層住居専用
取引態様
仲介
引渡し
相談

中古戸建 東松山市桜山台23-17(期間限定現況販売)で募集中の物件

  1. 31.30坪 (103.50㎡)

    1,299万円(41.5万円/坪)

周辺施設

  • 東松山市立桜山小学校の画像

    小学校

    東松山市立桜山小学校

    572m(8分)

  • 東松山市立白山中学校の画像

    中学校

    東松山市立白山中学校

    722m(10分)

近隣の物件

  1. 東松山市六軒町

    4LDK (103.70㎡)

    3,590万円

  2. 東松山市大字野田

    4SLDK (151.68㎡)

    1,690万円

  3. 東松山市松山町3丁目

    4LDK (106.40㎡)

    2,980万円

  4. 東松山市桜山台

    5LDK (131.03㎡)

    1,780万円

よく見られている物件

  1. 東松山市大字石橋

    3LDK (87.57㎡)

    2,880万円

  2. 東松山市大字西本宿

    5LDK (113.16㎡)

    2,299万円

  3. 比企郡嵐山町大字川島

    4DK (68.73㎡)

    1,159万円

  4. 熊谷市本石2丁目

    4DK (77.01㎡)

    1,030万円

中古戸建 東松山市桜山台23-17(期間限定現況販売)

お気軽にお問い合わせください

無料お問い合わせ

FFP不動産コンサルティング株式会社

0493-24-3425

9:00~18:00

(休:水曜日)