中古戸建 熊谷市柿沼448-20(期間限定現況販売)

899万円

埼玉県熊谷市柿沼448-20

秩父鉄道「石原」駅徒歩39分

高崎線「熊谷」駅徒歩53分

朝日バス「大幡中学校北」バス停

価格
899万円
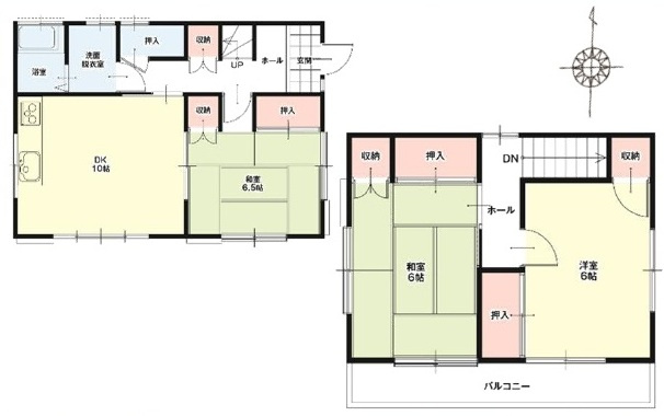
間取り/建物面積
3DK/73.69㎡
所在地
埼玉県熊谷市柿沼448-20
築年
1992年8月(築33年)
駐車
有(2台)
交通

秩父鉄道石原」駅 徒歩39分

高崎線熊谷」駅 徒歩53分

朝日バス「大幡中学校北」バス停下車 徒歩8分

中古戸建 熊谷市柿沼448-20(期間限定現況販売)の基本情報

物件名
中古戸建 熊谷市柿沼448-20(期間限定現況販売)
価格
899万円
建物面積
73.69㎡
土地面積
32.9坪(108.78㎡)
築年月
1992年8月(築33年)
総戸数
1戸
所在地
埼玉県熊谷市柿沼448-20
交通

秩父鉄道石原」駅 徒歩39分

高崎線熊谷」駅 徒歩53分

朝日バス「大幡中学校北」バス停下車 徒歩8分

中古戸建 熊谷市柿沼448-20(期間限定現況販売)の詳細情報

設備条件
  • 閑静な住宅地
  • 駐車2台可
設備(その他)
    -
駐車場/月額
有(2台)/-
土地権利
所有権
国土法届出
不要
用途地域
第二種中高層住居専用
取引態様
仲介
引渡し
相談

中古戸建 熊谷市柿沼448-20(期間限定現況販売)で募集中の物件

  1. 22.29坪 (73.69㎡)

    899万円(40.33万円/坪)

周辺施設

  • 熊谷市立大幡小学校の画像

    小学校

    熊谷市立大幡小学校

    753m(10分)

  • 熊谷市立大幡中学校の画像

    中学校

    熊谷市立大幡中学校

    813m(11分)

  • 熊谷市役所の画像

    市役所・区役所

    熊谷市役所

    2934m(37分)

近隣の物件

  1. 熊谷市日向

    5DK (88.60㎡)

    1,280万円

  2. 熊谷市弁財

    6DK (139.63㎡)

    1,249万円

  3. 熊谷市別府2丁目

    2LDK (94.40㎡)

    3,990万円

  4. 熊谷市押切

    4DK (78.66㎡)

    1,299万円

中古戸建 熊谷市柿沼448-20(期間限定現況販売)

お気軽にお問い合わせください

無料お問い合わせ

FFP不動産コンサルティング株式会社

0493-24-3425

9:00~18:00

(休:水曜日)